一般社団法人GAYA

加齢にともなう老齢期での収入の確保

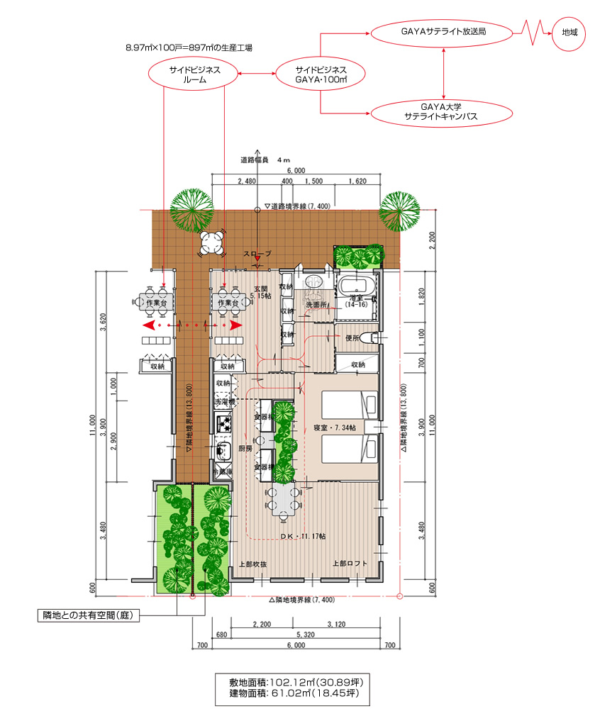
住宅各戸に配置されたサイドビジネスルームは、加齢にともなう老齢期での収入の不安定を解消するため、GAYA大学のプログラムによる「ソーシャルビジネス」の創出と企業との連携を図り、生涯、心身が機能する範囲において、社会に有用なものを提供し報酬を得るシステムを有している。それを補完し、品質を確保するため中央にサイドビジネスGAYAが配置されている。

pa-su pa-su

ウィンドウを閉じる