一般社団法人GAYA

31年前:高齢者住宅発信-Ⅲ

安息の地を求めて見知らぬ町に赴くことなく・・・
人生の希望は継続し、無為の強制を強いられる空間とは無縁な自らの意志の中に・・・
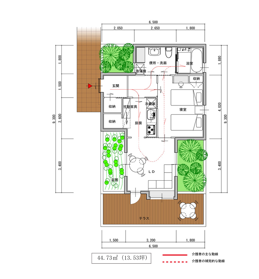
生活する「永住の場」をつくりだす・・・たった13坪でこんなに優雅な間取りが!・・・

 1982年事業提案

清潔に保つことは自己イメージの重要な部分である。パーソナルな衛生活動をすることが不可能なことは、人の自己イメージと自分は、価値ある存在だという感覚に決定的な打撃を与える。基本的な行為をなすことが不可能なことによって、つきあいたい希望や機会は制約されることになる。困惑と侮蔑に自分をさらすよりは、むしろ衣服を身につけないで、ベッドに終日寝ている方を選択するであろう。

●出典書籍:世界の高齢者住宅「プライバシーと自立の実現」
       J・デイヴィット・ホクランド著:鹿島出版会発行

pa-su

ウィンドウを閉じる 次へ